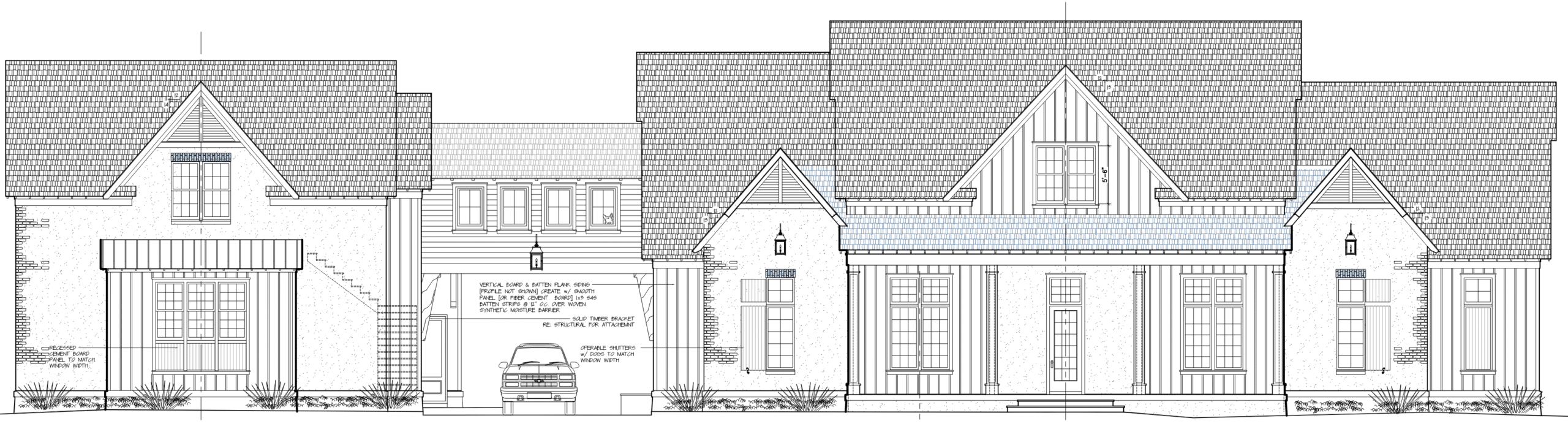
Birddog builders — the estates at the verandas in fairhope — lot 31

A custom-designed Modern Farmhouse on 3 acres in the Estates at the Verandas.

  • 4,000 ft² Main House
  • 20 × 26 Gourmet Kitchen with large island, dual sinks, dual dishwashers, and coffee nook
  • Unique Gallery connector at the core
  • Primary bedroom with dual walk-in closets, islands
  • Spacious home office
  • 4 bedrooms, 4½ baths
  • Unique built-in dog crate
  • Built-in bar for entertaining
  • Separate Friends’ Entry
  • Porte-Corchere to Garage
  • Future Garage apartment
  •  1,000 ft²custom woodshop
  • Safer room
Estates Lot 31